| Ru | Eng |
Назначение: Приемный бункер производительностью 10т/ч для хранения и разгрузки порошкового материала типа нефтяной кокс. Бункер предназначен для приема сырья из транспортировочных механизмов с целью компенсации неравномерности подачи сырья на склад или для технологической линии.
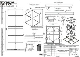
Конструкционные особенности бункера: Приемный бункер состоит из разборного корпуса и механизма выгрузки материала.Бункер имеет цилиндрическую форму с расположенным в центре выпускным отверстием.
Корпус бункера имеет смотровые отверстия для технического обслуживания. Разборной корпус бункера обеспечивает возможность замены отдельных узлов в случае необходимости при длительной эксплуатации.
Материал подается в отверстие, расположенное вверху бункера. Там он сохраняется на протяжении рабочей смены. Далее материал поступает вниз, где он может быть выведен с помощью механизма дозированной выгрузки согласно технологического процесса.
Также для бункера в составе технологической линии была разработана специальная система управления и автоматики.
Перед изготовлением бункера было проведено специальное исследование на абразивный износ его стенок.
Инженерные расчеты бункера и выпуск конструкторской документации:



Производство технологического бункера
Порезка металла, выкатка листов, сварочные и монтажные работы. Обшивка каркаса, изготовление смотровых окон и транспортировочных котушек










































Дякуємо всім друзям, партнерам, волонтерам за допомогу та вашу невтомну роботу! Продовжуємо допомагати нашим захисникам та доправляємо військове спорядження, гуманітарну допомогу, польову медицину та спеціальні медицині засоби до військових підрозділів, територіальної оборони, лікарень на передовій!
Якщо є люди, фонди та волонтери, які хочуть відправити допомогу в Україну з країн Європи або США, ми готові приймати на наші склади, складати збірні чи окремі партії та під замовлення і прицільно передавати їх далі кому вона необхідна. На всю гуманітарну допомогу буде надано звітність про передачу, фото.


Говорят, что большие вещи приходят в маленьких посылках. И в течение последнего десятилетия MXenes - двумерные соединения углерода и переходных металлов, впервые разработанные в Дрекселе - подтверждали эту точку зрения, стимулируя инновации во многих областях науки. Теперь новое партнерство открывает возможности для помощи MXenes в спасении жизней.
Совместно с этой лекцией профессор Юрий Гогоци получит звание почетного доктора Сумского государственного университета.Это уникальная возможность приобщиться к науке мирового уровня, окунуться в мир наноматериалов и проследить научный путь нашего соотечественника. Лекция пройдет в 16:00, 27 мая 2021 года в Конгресс-Центре СумГУ, зал Сингапур 220, в г. Сумы.
Материал MXene, который был впервые получен учеными из Университета Дрекселя в 2011 году, - это еще один шаг к тому, чтобы изменить жизнь людей, страдающих болезней почек на 
Участник проекта CANBIOSE из Центра материаловедения (MRC), выполнил визит в партнерскую организацию Вильнюсский университет, для выполнения программы совместных исследований и тренингов.
Всемирно известный ученый-украинец профессор Юрий Георгиевич Гогоци рассказал о последних новинках нанотехнологий. Возможность для общения с ученым мирового уровня - редкость, но воспитанникам Малой Академии Наук Украины (МАН) везет. Именно такую возможность они недавно получили.
Инженер-исследователь из MRC Иван Гришко находится в Латвийском университете, где провел семинар по MXenes
Совместно с польскими коллегами они
Совместно с коллегами из КТУ они занимались симуляциями и моделированием механических свойств наноматериалов и нанокомпозитов.
В январе 2019 года профессор Юрий Гогоци был избран членом Европейской академии наук (EURASC). Профессор Юрий Гогоци - ведущий украинский и американский ученый в области химии, с 2000 года профессор Университета Дрекселя, Филадельфия, США, в области материаловедения, инженерии и нанотехнологий.