
| Ru | Eng |
Materials Research Centre developes and manufactures receiving hoppers and bins for material supply.
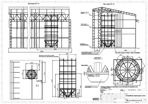
Receiving hopper with capacity 10t/h has been developed for storing and discharging of the powder material like petroleum coke.
Application of Receiving hopper: It is intended for receiving the material from the carriers to compensate the uneven feed into processing line.
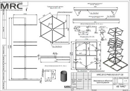
Components of the receiving hopper:
- multi-section hopper frame;
- material discharging mechanism
Hopper operation The material is fed into the opening at the top of the hopper. There it is kept during the shift. Further it goes down to be outputed with the system for dosing discharge in accordance with technological process.
Thickness of the hopper frame shall guarantee the mechanical durability of the equipment during transportation and operational environment taking into account the corrosion properties of the internal environment.
The hopper frame must have a split body design.
Also for the hopper in-line has been developed system of control and automation.
Before hopper manufacturing special study on the abrasive wear of its walls was conducted .
Engineering development, design, calculations of receiving hopper
Engineering design drawings of receiving hopper
Manufacturing of receiving hopper
Metal cutting, rolling out of sheets, welding and assembly. Outer casing of the hopper , manufacturing observation windows and spouts.








































MXenes potential applications include sensors, wound healing materials, and drug delivery systems. A recent study explored how different synthesis methods affect the safety and performance of MXenes. By comparing etching conditions and intercalation strategies, researchers discovered that fine-tuning the surface chemistry of MXenes plays a crucial role in improving biocompatibility. These results provide practical guidelines for developing safer MXenes and bring the field one step closer to real biomedical applications.
Exellent news, our joint patent application with Drexel University on highly porous MAX phase precursor for MXene synthesis published. Congratulations and thanks to all team involved!
Our team was very delighted to take part in International Symposium "The MXene Frontier: Transformative Nanomaterials Shaping the Future" – the largest MXene event in Europe this year!
Last Call! Have you submitted your abstract for IEEE NAP-2025 yet? Join us at the International Symposium on "The MXene Frontier: Transformative Nanomaterials Shaping the Future" – the largest MXene-focused conference in Europe this year! Final Submission Deadline: May 15, 2025. Don’t miss this exclusive opportunity to showcase your research and engage with world leaders in the MXene field!
We are excited to announce the publication of latest review article on MXenes in Healthcare. This comprehensive review explores the groundbreaking role of MXenes—an emerging class of 2D materials—in revolutionizing the fields of medical diagnostics and therapeutics. Read the full article here: https://doi.org/10.1039/D4NR04853A.
Congratulations and thank you to our collaborators from TU Wien and CEST for very interesting work and making it published! In this work, an upscalable electrochemical MXene synthesis is presented. Yields of up to 60% electrochemical MXene (EC-MXene) with no byproducts from a single exfoliation cycle are achieved.
Congratulations to all collaborators with this interesting joint work!
Thank you to our collaborators for the amazing joint work recently published in Graphene and 2D Nanomaterials about MXene–silk fibroin composite films aiming to develop materials with tunable electronic and thermal properties
Dr. Oleksiy Gogotsi, director of MRC and Carbon-Ukraine, innovative companies that are among the leaders on the world MXene market, visited 2024 MRS Fall Meeting & Exhibit. together with Dr. Maksym Pogorielov, Head of Advanced Biomaterials and Biophysics Laboratory, University of Latvia.
MRC and Carbon-Ukraine team visited the 3rd International MXene conference held at Drexel University on August 5-8, 2024. Conference brought together the best reserchers and leading experts on MXene field. 
Together with colleagues from the University of Latvia, MRC/Carbone Ukraine, Adam Mickiewicz University, University Clinic Essen, and others, we have developed a novel concept involving the binding of antibodies to MXenes. In our research, we utilized anti-CEACAM1 antibodies to develop targeted photo-thermal therapy for melanoma (in vitro), paving the way for future in vivo studies and clinical trials. For the first time, we demonstrate the feasibility of delivering MXenes specifically targeted to melanoma cells, enabling the effective ablation of cancer cells under near-infrared (NIR) light. This new technique opens up vast potential for the application of MXenes in cancer treatment, diagnostics, drug delivery, and many other medical purposes.